10’ x 44′ Mobile Office Trailer
Mid-Sized Modular Office Building for Construction or Commercial Use
Buy or Lease This Job Site Trailer for Short or Long-Term Projects
Check Availability & PricingProperty management, job site supervision, security, office storage overflow, and seasonal or special event businesses are all terrific uses of 10′ x 44′ construction trailers that offer a versatile 400 square feet of office space. Contact us for mobile office rental prices based on your lease term.
Comfortable workspace for 2 – 4 people
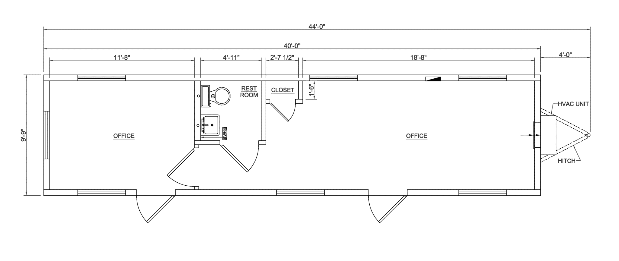
Door, window, and partition locations may vary depending on the manufacturer. Consult with the Sales Team to confirm the layout of your mobile office trailer.
Measurements:
- Length: 44’ Long, including hitch (40′ Box Size)
- Width: 10’ Wide
- Ceiling Height: 8′ High
Electric:
- 120/240V Single Phase
- 100 Amp Breaker
- LED Ceiling Lights
- LED Exterior Lights
- Motion Sensor Light Switches
- USB Port Outlets
Exterior Finish:
- Smart Panel Wood Siding
- I-Beam Frame
- J-Rail Roof Edge Gutters
- R-21 Insulation
Interior Finish:
- Luma Beige VCP
- VCT White Tile Floors
- Gypsum Ceiling
Heating/Cooling:
- 2-Ton Wall Mounted Bard
- Thermostat – 7-Day Programmable
- HVAC – 11 EER Rating
Windows/Doors
- Double Insulated Vinyl Windows
- (7) Horizontal Slider Windows
- (2) Steel Doors with Standard Locks
Other (Optional):
- (1) Restroom
- (1) Private Office
- (1) Closet
- The Solutions: Furniture and Accessories For Rent
- Security package
- Stair/Entry
Portable Office Floor Plans
10' x 44' Office Trailer Floor Plan with Furniture
Need help deciding which size mobile office trailer is best for you? Check out our Mobile Office Trailer Size Guide here.
Check Availability & Pricing
Contact a Triumph Representative today




